MAP55-4000 INSTALLATION
 

New WashWORX replacement power supply


  1. Remove the old power supply and the metal cover.
  2. Drill two new holes in the metal cover as shown in diagram 1. Drill one access hole as shown in diagram 2.
  3. Attach the new power supply to the metal cover using the new holes such that the 110 VAC power connector is located in the lower left hand corner of the metal cover.
  4. Mount the metal cover with the power supply using the existing screws, the 1/4" standoffs are no longer necessary.
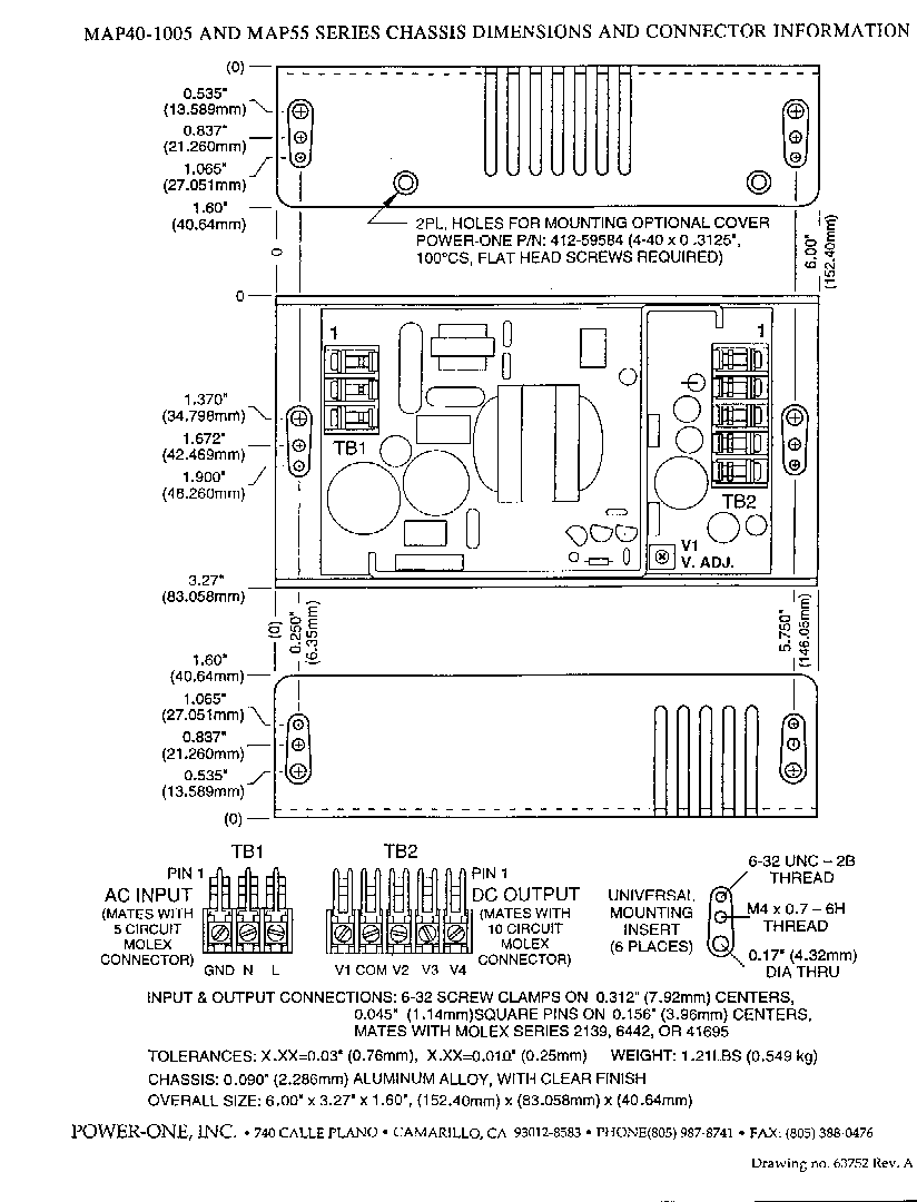
  5. Connect the existing (5 position - 3 conductor) 110 VAC cable to the TB1 connector on the power supply.
  6. Connect the existing 12 position connector to the 12 position adapter cable that comes from TB2 on the power supply. Match up the brown wires located at position 1.
  7. Verify the 5 volt power supply operation by measuring across the RED and BLACK wires on the front of the WashWORX board in the 8 conductor power connector. Using a digital voltmeter, the reading should be stable at a level between 4.95 and 5.15. If it is outside of this range, adjust the level slowly through the access hole using a non-conductive miniature screwdriver...( or anything else that fits in the hole )

 
 

Diagram 1
 
 
 
 
 
 
 

Diagram 2



 
 
 
 

MAP55-4000 Adapter Cable Definitions


 
 
  MAP55-4000 Power Supply Specifications
  MAP55-4000 Power Supply Dimensions



Home   E-mail info to WashWORX